WhatsApp

Hanglagen-Grundstück mit Projekt und erteilter Baugenehmigung in Cas Concos mit Weitblick bis ins Tramuntana Gebirge.

Can Congas

Über die Immobilie

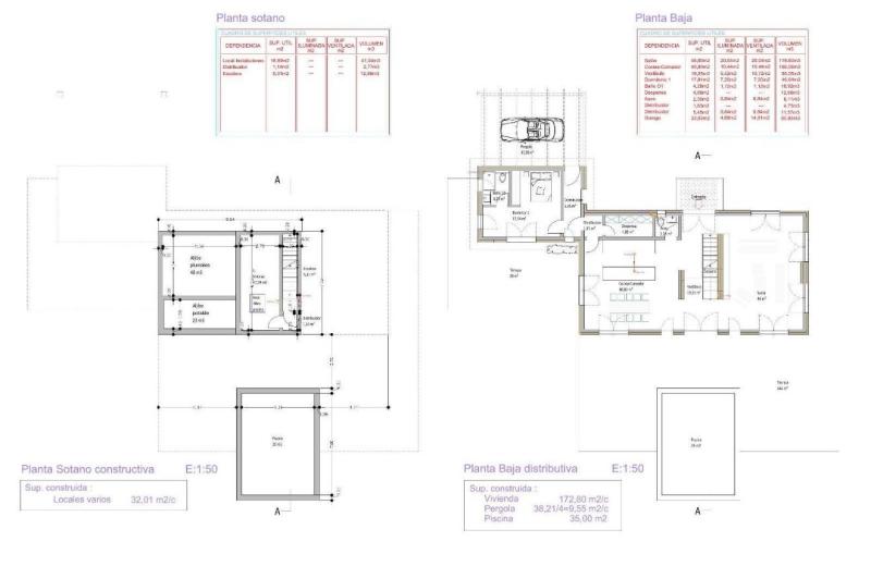
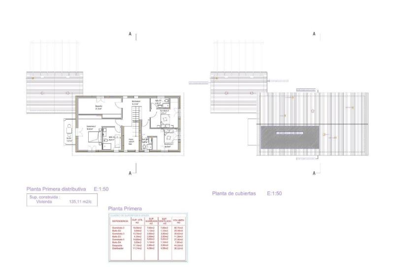
 Bauprojekt in Ca´s Concos – Exklusives Wohnen auf großzügigem Grundstück  In begehrter Lage von Ca´s Concos auf Mallorca entsteht ein außergewöhnliches Neubauprojekt, das modernen Wohnkomfort mit mediterraner Lebensqualität vereint. Auf einem beeindruckenden Grundstück von 25.467 m² bietet dieses Projekt Privatsphäre, Ruhe und Weitläufigkeit – eingebettet in die natürliche Schönheit der Insel. Die geplante verbaute Fläche von 456 m² schafft großzügige Dimensionen für anspruchsvolles Wohnen. Die reine Wohnfläche von 236 m² überzeugt durch eine durchdachte Raumaufteilung, lichtdurchflutete Bereiche und eine harmonische Verbindung von Innen- und Außenleben.  Raumaufteilung & Highlights   4 großzügige Schlafzimmer 4 elegante Badezimmer Offener Wohn- und Essbereich mit direktem Zugang zu Terrassen Großzügige Fensterflächen für maximalen Lichteinfall Weitläufige Außenbereiche mit vielfältigen Gestaltungsmöglichkeiten  Das Projekt ist ideal für Käufer, die Ruhe, Exklusivität und ein großzügiges Grundstück schätzen, ohne auf eine gute Erreichbarkeit und Infrastruktur zu verzichten. Die Lage in Can Congas verbindet naturnahes Wohnen mit der Nähe zu den schönsten Stränden, charmanten Ortschaften und erstklassigen Restaurants Mallorcas. Dieses Bauvorhaben bietet die seltene Möglichkeit, eine moderne Villa in einer der attraktivsten Regionen der Insel zu realisieren – mit viel Platz, Privatsphäre und Wertstabilität.

Kontaktieren Sie uns
WhatsApp